A client came to us in a panic. Major structural job in West London. Their QS had dropped out. Builder was ready to start. They needed a full Bill of Quantities — yesterday.
This is the story of how we priced Chiswick, West London W4 — a £900,000+ structural alteration and high-end interior fit-out — in 4 working days.
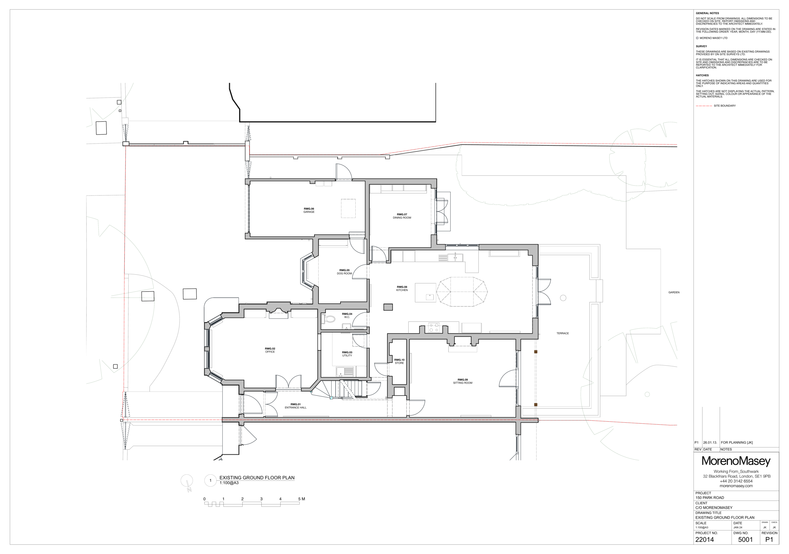
The Job: What We Were Dealing With
a property in Chiswick, West London, Chiswick, W4 — a substantial Victorian townhouse across basement, ground, first and second floors. Total area: approximately 365 m².
The scope:
- Full basement structural alterations including new foundations
- Ground floor rebuild with rear extension
- Upper floor and roof alterations including a dormer
- High-end interior fit-out throughout all four levels
- Major structural steel — multiple beam installations
- 24-week programme
Builder: the contractor, Power Design & Build. Client: the client.
The London Problem: Why This Job Was Harder to Price Than It Looks
Standard UK rates do not apply in West London. We had to account for several cost drivers that most builders and QS firms miss entirely.
1. Commercial Traffic & Logistics Uplift
a property in Chiswick, West London sits in a tight residential street in Chiswick. No room for a skip without permits. No easy access for large plant. Mini-digger required instead of full excavator. Every lorry movement coordinated around rush-hour restrictions.
Impact: Muck-away at £45/m³ vs £28/m³ in regional UK. 200m³ of excavated spoil = £9,000 in disposal costs alone.
2. Parking Suspension Permits
One item most QS firms miss entirely. To work legally in a London borough, the builder needs parking suspensions for plant, skips and deliveries throughout the programme.
We included: the local borough 24-week parking suspension permit — £1,200. A silent margin killer if it is missing from the quote.
3. Scaffold Licence
Any scaffold on or near the public highway in London requires a licence from the borough. Often forgotten. Never cheap once you are on site without one.
the local borough scaffold licence: £650.
4. Real London Labour Rates — Q1 2026
- Structural steel subcontractor: £3,500/tonne supply and install
- Site foreman/working supervisor: £280/day
- Project manager: £50/hr
- Skilled trades (carpentry, M&E, finishes): £38–£45/hr
The Full Cost Breakdown

| Section | Cost (excl. VAT) | Rate per m² |
|---|---|---|
| 1. Basement + Structural Substructure | £88,840 | £243/m² |
| 2. Ground Floor Rebuild + Rear Extension | £360,316 | £987/m² |
| 3. Upper Floors + Roof Alterations | £193,243 | £529/m² |
| 4. Preliminaries, Generals & Margin | £259,867 | £712/m² |
| TOTAL (excl. VAT) | £902,265 | £2,472/m² |
| GRAND TOTAL (incl. 20% VAT) | £1,082,718 | £2,966/m² |
Benchmark context: High-end London residential refurbishment with structural works typically ranges £2,200–£3,500/m² in Q1 2026. At £2,472/m² excl. VAT, this job sits in the mid-high range — appropriate for the scope, location, and programme complexity.
The P&Gs Section: Where Most Builders Lose Their Margin
Preliminaries and Generals came to £259,867 — 29% of total build cost.
This is higher than a standard residential job. Every line earned its place.

| P&G Item | Cost |
|---|---|
| Project Manager — 240hrs @ £50/hr | £12,000 |
| Site Foreman — 120 days @ £280/day | £33,600 |
| Contract Works Insurance (£1.2m cover) | £3,500 |
| Scaffolding (erect, 20 weeks hire, dismantle, licence) | £12,250 |
| Parking Suspension Permits — the local borough 24 weeks | £1,200 |
| Contingency — 5% of construction cost | ~£32,000 |
A builder who leaves prelims thin on a job this size ends up personally funding site management for 24 weeks. We have seen it happen. It destroys margins and cash flow simultaneously.
How We Turned It Around in 4 Working Days
The client came to us on a Monday. Builder was mobilising Friday. Here is how we structured the turnaround:

- Day 1 — Monday: Plans received and briefed. Structural drawings reviewed. London rate card set for this specific job. All provisional sums flagged (asbestos survey, any unknown substructure conditions).
- Day 2 — Tuesday: Basement and Structural section priced. Steel tonnages confirmed against structural engineer drawings. All demolition, excavation, and foundations quantified.
- Day 3 — Wednesday: Ground Floor, Extension, and Upper Floors priced. Builder consulted on spec — facing brick type to match existing London stock, insulation specification, beam sizes. All subcontractor packages scoped.
- Day 4 — Thursday: P&Gs and Margins. Full cross-check of all totals. Red notes added to every provisional sum and assumption. QA review complete. BOQ issued to client.
Total: 5 tabs, 200+ line items, fully cross-checked — issued in 4 working days.
Client approved it the same week. Builder mobilised on programme. No delays, no last-minute repricing, no arguments about what was included.
5 Things UK Builders Consistently Miss on London Jobs
- London rates are 25–40% higher than regional UK — labour, waste disposal, plant logistics — all of it
- Parking permits and scaffold licences are real, budgeted costs — not afterthoughts
- P&Gs on complex structural work should be 25–30% of build cost — not 8–10%
- Contingency on structural work is non-negotiable — 5% minimum when substructure is involved
- Speed wins — a desperate client with a builder ready to mobilise needs a fast response, not a 3-week wait
Price Your Next Job With Confidence
Whether it is a straightforward residential extension or a complex structural project like a property in Chiswick, West London — we produce fully itemised, professionally cross-checked QS reports for UK builders and contractors.
Every report includes:
- Full labour / materials / subcontractor split
- Real current UK rates for your region
- Properly costed P&Gs and preliminaries
- Red-noted provisional sums and assumptions
- A document your client can bank on
48-hour turnaround. From £299.
📧 david@rapidqs.com
📞 +44 7438 628277
RapidQS — Quantity Surveying for UK Builders. Fast, accurate, bankable.



